- 
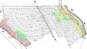
                        North Whitehall's Planning Commission on Tuesday reviewed a plan for the proposed Rising Sun Subdivision, which would have 116 single-family homes on about 100 Acres.
- 
                        Upper Macungie Township has announced several new indoor programs for this winter, including Zumba, youth soccer, arts classes and a science camp. Several of these classes have been offered outdoors during other seasons, but have never been offered during the winter months.
- 
                        The alleged double homicide of 16-year-old Rianna Glass and her mother Rosalyn Glass motivated Parkland School District resident Rachel Farrow to advocate for more education about teen dating violence and abuse.
- 
                        The South Whitehall Township Board of Commissioners is looking to put an open space tax referendum on the November 2024 ballot. Lower Macungie Township recently passed a similar referendum.
- 
                        Over 1,500 veterans are buried at Resurrection Cemetery in Upper Macungie Township. But last year, only about 1,032 wreaths were placed, leaving hundreds without one.
- 
                        North Whitehall Township's zoning hearing board opted to continue a meeting until December before making a decision on whether to allow Foxy's Cradle, a neonatal kitten nursey, to operate in the owner's residence.
- 
                        A decade or so after buying his South Whitehall Township home in the late 1960s, Fred Buse started recording the average temperature, precipitation type and amount, as well as any animal sightings in his backyard to study and track the health of the local environment.
- 
                        The Upper Macungie Board of Supervisors voted 2-1 to approve a list of conditions for a warehouse to be built at 110 PA Route 100.
- 
                        South Whitehall commissioners voted unanimously to grant final approval for Phase 1B of Ridge Farms, which includes apartment buildings and twin homes.
- 
                        South Whitehall commissioners will vote Wednesday on whether to grant final approval to Phase 1B of the controversial mixed-use development Ridge Farms.
 
 
 
 
 
 
 
 
 
