© 2026 LEHIGHVALLEYNEWS.COM
Your Local News | Allentown, Bethlehem & Easton
Play Live Radio
Next Up:
0:00
0:00
Available On Air Stations
Parkland News

Housing development on 107 acres tabled by North Whitehall planners

NWT Planning Commission
Olivia Marble
/
LehighValleyNews.com
The North Whitehall Township Planning Commission discusses the plan for Greenleaf Fields at Parkland.

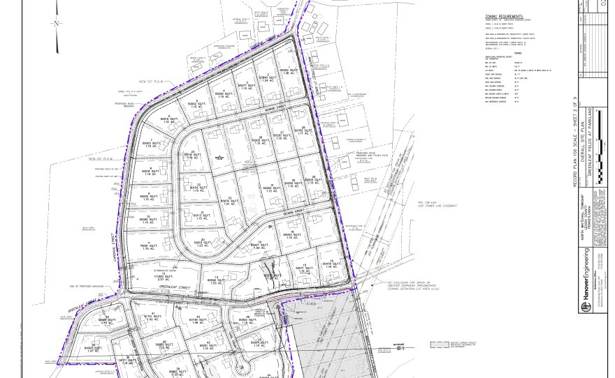
NORTH WHITEHALL TWP., Pa. — A proposed housing development that would cover more than 107 acres in North Whitehall Township will need more review before it moves forward.

The township Planning Commission on Tuesday discussed the latest plan for Greenleaf Fields at Parkland, which involves home building company Tuskes Homes.

Plans are for 44 lots of just over one acre each, with the entire development covering 107.1 acres.

  • North Whitehall planners discussed proposed housing development Greenleaf Fields at Parkland
  • The development would be at Greenleaf and Maple Streets and would have 44 lots
  • The commission tabled the plan and likely will discuss it at the next meeting on April 25

Greenleaf Fields at Parkland would connect to Valley Green Drive, a road to the south of the proposed development that currently ends in a cul-de-sac.

Resident Karen Osmun expressed concern about the increased traffic that would come through Valley Green Drive, especially because there are children and elderly people on the road.

Tuskes Homes’ Director of Land Development Phil Malitsch said the company could install signs warning drivers to be cautious.

Planners discussed an agreement between the township and the developer in which the developer would make improvements to Cardinal Road and Greenleaf Street.

In exchange, the developer would be allowed to include a cul-de-sac in the development and the township would waive some fees.

“I think I'm getting on board. This, I think, is a good path forward.”
Brian Horwith, chairman of the Planning Commission

Planning Commission Chairman Brian Horwith said he thought the plans were moving in the right direction.

“I think I'm getting on board,” Horwith said. “This, I think, is a good path forward.”

The commission tabled the plan to work out specifics of the agreement and address other issues.

Other business

The commission also discussed plans for “phase two” of Ridings at Parkland, a new housing development off Schneck Road.

Ridings at Parkland also was built by Tuskes Homes. The company did not submit any official plans for phase two, but lawyer Joe Piperato said the plan would add about 40 houses to the development.

Planners gave suggestions for the plan but took no official action.

The commission also discussed a potential new car sales business in the township.

Chris Birgl, who owns Vollux Autowerks at 4315 Independence Drive, is requesting a special exception to zoning laws so he can sell cars from his existing auto repair shop.

The new company would be called Thirty Two Automotive Group and would primarily sell high-end cars. Birgl said he doesn't expect to keep many cars in inventory.

Planners unanimously recommended the township Zoning Hearing Board grant the special exception, as long as no cars are displayed outdoors.