SOUTH WHITEHALL TWP, Pa. — A new housing development may be coming to South Whitehall Township.
A representative of Jaindl Land Co. on Thursday presented to the township Planning Commission a plan to build 78 single-family homes along Chapmans and Blue Barn Roads.
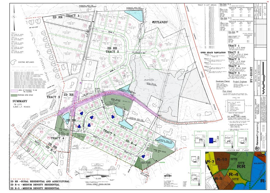
- South Whitehall Planners on Thursday reviewed a 78-unit housing development at Chapmans and Blue Barn Roads
- The proposal is on about 89 acres. Part of the area now is farmland, and the rest is woodlands and wetlands
- The submission was a sketch plan, so the planners took no votes and made no recommendations
The proposal, called Blue Barn Subdivision, is on about 89 acres. Part of the area now is farmland, and the rest is woodlands and wetlands, according to plan submissions.
Lots in the development would be 9,600 square feet and 4.32 acres, with the smaller lots to the south of Chapmans Road.

Planners and residents had concerns about the plan’s impact on traffic and road safety.
But planners Chairman David Wilson said he thought the development could help solve stormwater issues and bring road improvements to the area.
“I think this is a great opportunity to fix some problems there,” Wilson said.
The subdivision would be built on five tracts of land. Three of the tracts in the northern section are zoned Rural Residential and Agricultural. The two southern tracts are zoned Medium Density Residential.
All the units in the current plan are single-family homes, but the zoning of the land south of Chapmans would allow twin homes.
The submission was a sketch plan, so the planners took no votes and made no recommendations. A preliminary plan for the development will come before the Planning Commission at a future meeting.
‘It’s a highway, basically’
The plan would add a new road that would intersect with Chapmans Road just east of the Chapmans and Blue Barns Road intersection.
Planning Commission member Brian Hite said he was concerned about the new intersection because of how fast people drive on Chapmans Road.
“They’re doing way more than 40 mph. It’s a highway, basically,” Hite said.
“I’m almost like a prisoner in my house."Radelle Psarsky, South Whitehall resident
Radelle Psarsky, who lives on Blue Barn Road, told planners she is concerned about the additional traffic the development would bring. She said she now has trouble getting out of her driveway because of the number of cars and how fast they go.
“I’m almost like a prisoner in my house,” Psarsky said.
Alternate Township Engineer David Tettemer reassured Psarsky that the township would look closely at the potential traffic impact of the development.
“And with the current design requirements for those two roads, we should be able to work with PennDOT pretty well to get some improvements out there,” Tettemer said.
President at Hanover Engineering Associates Charlie Unangst presented the plan. He said one of the ways the development would address safety concerns would be realigning the intersection of Chapmans and Blue Barn Roads and make it a four-way stop.